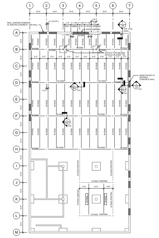
Lena, WI – AKRO worked for Revolution Industrial Services to inspect and evaluate existing floor framing and concrete columns and design a new concrete flooring and additional framing and column replacements. AKRO provided design drawings for the concrete flooring as well as the replacements.

