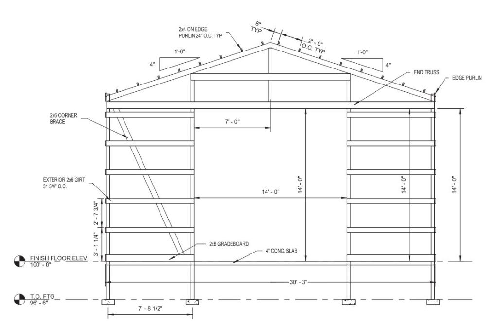
Rapid River, MI – AKRO provides pole building and post frame engineering and construction drawings such as this 30×48 unheated pole building. This project included a design for wood framing and concrete for a pole building with 29 Ga metal siding and a transparent upper panel.

